КД-180

3.72 млн ₽
в комплектации "Базовая"
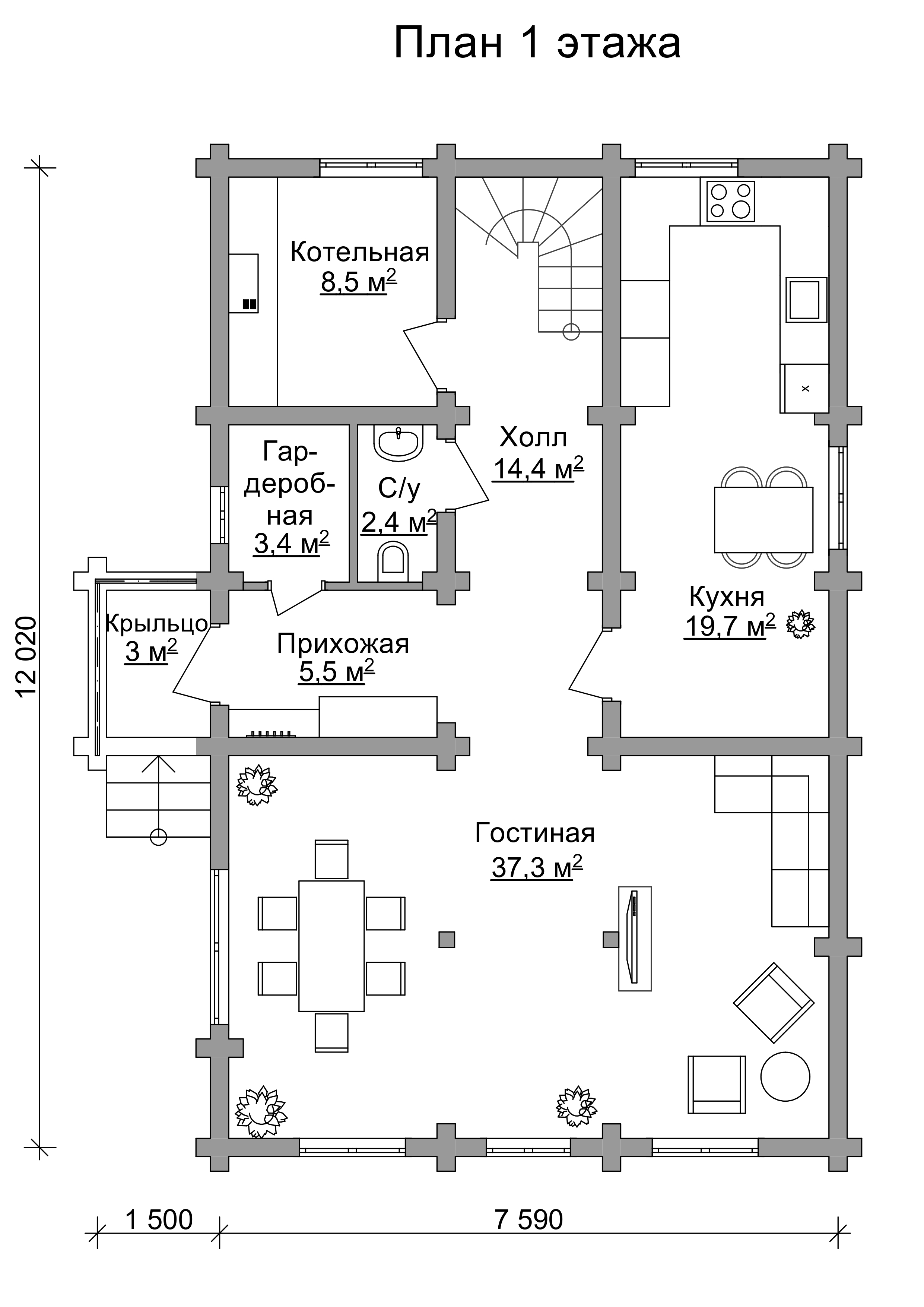
Площадь
186 м²
Размеры
7×12 м
Комнаты
5 шт
Срок строительства
100 дней
Категория
Коттеджи (дома)
Этажность
1.5 этажа
Дополнения
Котельная, Гардеробная
Популярность
88%

Планировка

Планировка 1
Планировка 2

Бесплатное проектирование

Для наших клиентов мы осуществляем бесплатное проектирование при строительстве у нас. Также мы можем подготовить проект на платной основе в случае строительства дома в сторонней организации.

Сравнение комплектаций

Базовая

3.72 млн ₽
Базовая комплектация включает домокомплект из сухого двойного бруса камерной сушки с утеплением, черновую кровлю, черновые полы и потолки, все прочие необходимые материалы а так же сборку (монтаж) на Вашем участке. Идеальный вариант для тех, кто планирует самостоятельно заниматься отделкой и инженерными коммуникациями.

Комфорт

6.55 млн ₽
Комплектация "Комфорт" включает всё из базовой комплектации, а также: фундамент, утепление полов и потолков, чистовую тёплую кровлю из металлочерепицы, покраску стен, установку окон и дверей. Оптимальный вариант для тех кто хочет полностью законченный вариант дома для самостоятельной прокладки инженерных коммуникаций.